Vente local à Nice

Riquier 06300 Nice
Prix : 495 000 €
Surface : 191m2

Vente Local

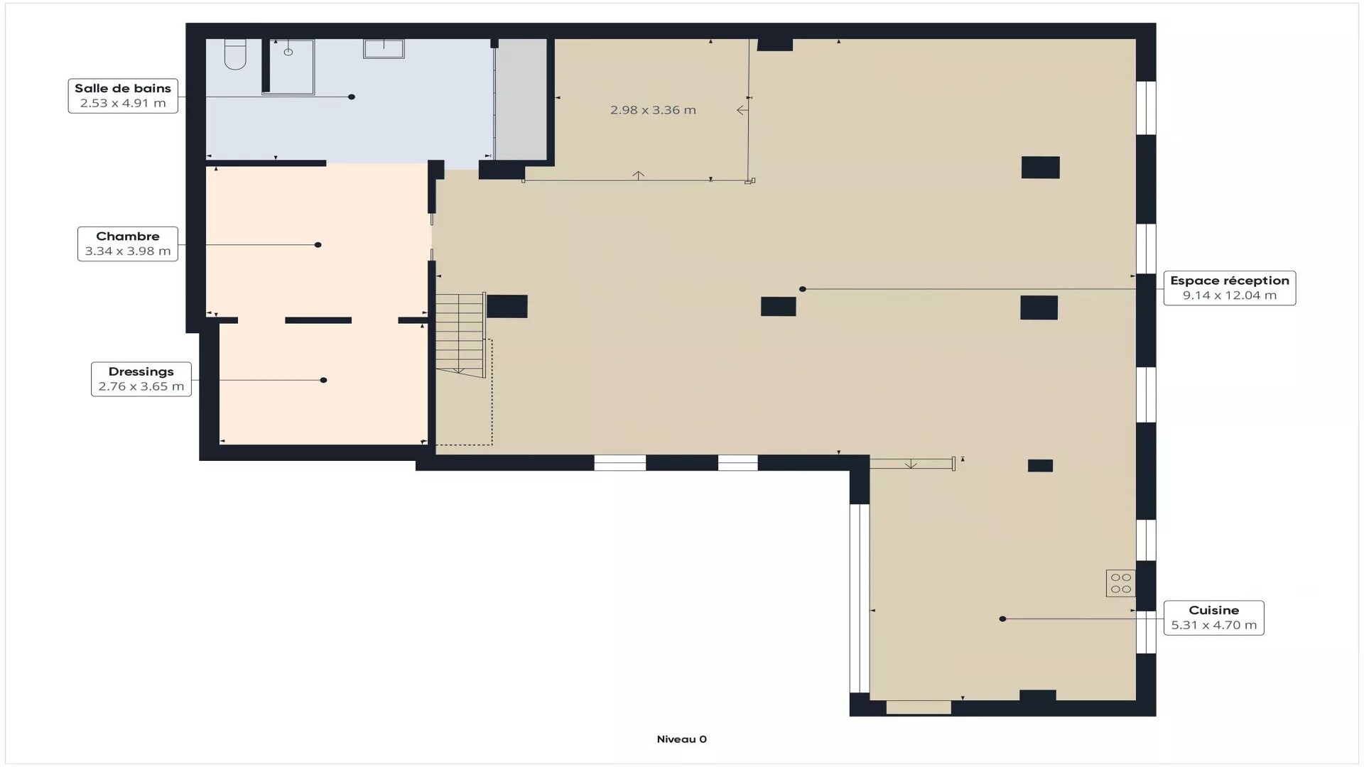
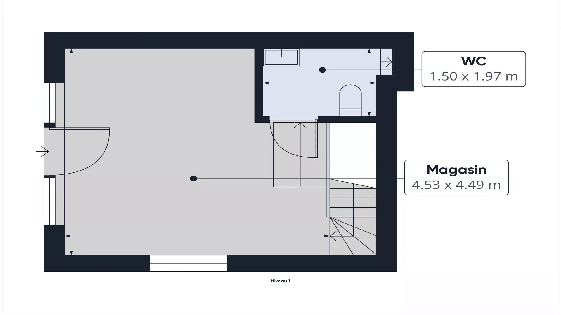
ImmoVendu vous présente en EXCLUSIVITÉ ce local commercial de 191 m² idéalement situé à deux pas de l'arrêt de tram République un emplacement très recherché.Le local est composé d’un magasin en rez-de-chaussée sur rue de 23 m², d'un grand local en entresol de 168 m² (actuellement exploité en café culturel).Le Magasin dispose d’une vitrine avec une hauteur de 2,80m et une largeur de 2,50m.N'hésitez à consulter la visite virtuelle sur notre site.Charges mensuelles : 215 euros / Mois comprenant ENTRETIEN DES PARTIES COMMUNES.TAXE FONCIÈRE: 1.664 eurosNb de lot : 7

Géolocalisation

Biens similaires

Vente local à Nice

06300 Nice

Vente local à Nice

06300 Nice

Vente local à Nice

06000 Nice

Vente local à Nice

06000 Nice

Vente local à Nice

06000 Nice

Vente local à Nice

06000 Nice

Contacter gratuitement

GESTION CASSINI

12 rue François Guisol
06300, Nice
Pour connaître et exercer vos droits, notamment de retrait de votre consentement à l'utilisation des données collectées par ce formulaire, veuillez consulter nos CGU