Vente local à Beaulieu-sur-Mer

centre ville, commerces, plage, gare 06310 Beaulieu-sur-Mer
Prix : 275 000 €
Surface : 111m2

Vente Local

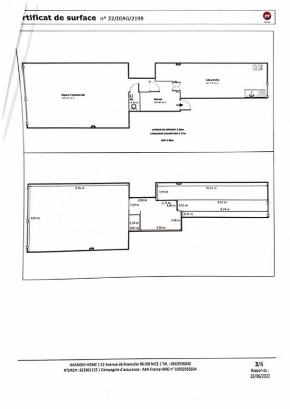
À vendre - Fonds de commerce Pâtisserie / Traiteur Emplacement premium - Beaulieu-sur-Mer En plein centre de Beaulieu-sur-Mer, dans un emplacement très passant, découvrez ce fonds de commerce de pâtisserie - traiteur, bénéficiant d'une excellente réputation et d'une clientèle fidèle. Une belle opportunité à saisir, cause départ à la retraite. Le local commercial développe une surface totale de 111,34 m², dont 83,5 m² en rez-de-chaussée, comprenant : - Un espace de vente lumineux de 37 m² - Un laboratoire entièrement équipé de 32 m² avec extraction conforme - Un bureau de 13,43 m² - Une réserve en sous-sol de 27,1 m² avec douche et toilettes Façade vitrée de 4,50 mètres linéaires, offrant une belle visibilité sur un axe passant. Loyer annuel : 21 600 € CC Bail 3-6-9 Fin de première triennale. Les + : - Emplacement n°1 au cœur du centre - Matériel professionnel complet et entretenu - Clientèle locale et touristique régulière - Fort potentiel de développement Surface CARREZ : 83.5 m² Prix de vente 275 000 € Honoraires : 25 000 € TTC (0 %) inclus charge acquéreur (250 000 € hors honoraires) solde honoraires charge vendeur Montant estimé des dépenses annuelles d'énergie pour un usage standard : 3 000 € par an. Prix moyens des énergies indexés au 01/01/2021 (abonnement compris). DPE : E GES : B Pour visiter et vous accompagner dans votre projet, contactez Elodie PICON-BRUN 06 67 44 38 75 Honoraires : 25 000 € TTC (0 %) inclus charge acquéreur (250 000 € hors honoraires) solde honoraires charge vendeur Prix de vente 275 000 € Selon l'article L.561.5 du Code Monétaire et Financier, pour l'organisation de la visite, la présentation d'une pièce d'identité vous sera demandée. Les informations sur les risques auxquels ce bien est exposé sont disponibles sur le site Géorisques : www.georisques.gouv.fr Cette présente annonce a été rédigée sous la responsabilité éditoriale de Elodie PICON-BRUN agissant sous le statut d'agent commercial immatriculé au Ville du greffe : NICE sous le numéro RSAC N° 823 722 293 auprès de la SAS IMMO RESEAU au capital de 10 000€ - Réseau national immobilier sur internet, 44 Allée des Cinq Continents - 44120 VERTOU - RNE NANTES 519 718 886. Carte professionnelle T et G n° CPI 3002 2018 000 024 971 CCI de Nantes-Saint-Nazaire (44) ; Garantie par GALIAN - 89 rue de la Boétie - 75008 Paris N°171379G pour 120 000€ pour T. Assurance responsabilité civile professionnelle par GALIAN n° de police 120 137 405 (réf. 36779) - Le professionnel garantit et sécurise votre projet immobilier Prix de vente 275 000 € Honoraires : 25 000 € TTC (0 %) inclus charge acquéreur (250 000 € hors honoraires) solde honoraires charge vendeur Montant estimé des dépenses annuelles d'énergie pour un usage standard : 3 000 € par an. Prix moyens des énergies indexés au 01/01/2021 (abonnement compris). DPE : E GES : B

Géolocalisation

Biens similaires

Vente local à Beaulieu-sur-Mer

06310 Beaulieu-sur-Mer

Contacter gratuitement

IMMO RESEAU

BAT E, 32 rue Mallet Stevens
30900, Nîmes
Pour connaître et exercer vos droits, notamment de retrait de votre consentement à l'utilisation des données collectées par ce formulaire, veuillez consulter nos CGU