Vente local à Cannes

06400 Cannes
Prix : 22 200 €
Surface : 98m2

Vente Local

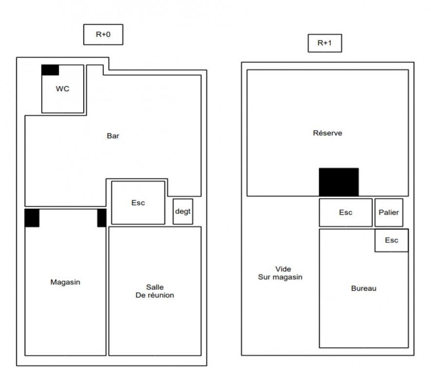
LOCATION PURE :06400 / CANNESCentre villeLOCAL COMMERCIAL sur 2 niveaux de 95 M2 sur rue passante et à proximité immédiate de la rue d'Antibes.PAS DE DROIT AU BAIL - PAS DE PAS DE PORTE : Aucun frais à prévoir à l'entrée dans les locauxLES CONDITIONS :- LOYER annuel : 18 600 € HT soit 1550 € mensuel- Provision sur charges : 500 € annuel- taxe foncière charge preneur : 734 € annuel- frais de rédaction du bail commercial : charge preneurACTIVITES POSSIBLES :Ce local commercial est idéal pour l'exploitation de :- activité de bureaux professionnels ( agence immobilière, architecte, designer, show room, comptable, avocat ... )- activité de stockage et bureau pour un artisan- cave à vin, épicerie, magasin....Pas de nuisances, pas d'extraction, pas de restauration...Notre agent commerce Franck PUCCETTI reste disponible 7/7 au 06 81 73 39 17 ou par mail : [email protected] Les informations sur les risques auxquels ce bien est exposé sont disponibles sur le site Georisque : georisques. gouv. fr Franck Puccetti - EI - est Agent Commercial mandataire en immobilier, immatriculé au Registre Spécial des Agents Commerciaux du Tribunal de Commerce de Antibes sous le n°502598634.Siège social du mandant : effiCity, 48 avenue de Villiers - 75017 PARIS - Société par Actions Simplifiée, société au capital de 132 373,05 euros, immatriculée au RCS Paris 497 617 746 et titulaire de la Carte professionnelle CPI 7501 2015 000 002 025 - CCI Paris IDF - Caisse de Garantie : GALIAN Assurances 89 rue de la Boétie 75008 Paris

Géolocalisation

Biens similaires

Vente local à Cannes

06400 Cannes

Contacter gratuitement

RESEAU EFFICITY

48 Avenue de Villiers
75017,
Pour connaître et exercer vos droits, notamment de retrait de votre consentement à l'utilisation des données collectées par ce formulaire, veuillez consulter nos CGU