Vente local à Cannes

06400 Cannes
Prix : 1 600 000 €
Surface : 123m2

Vente Local

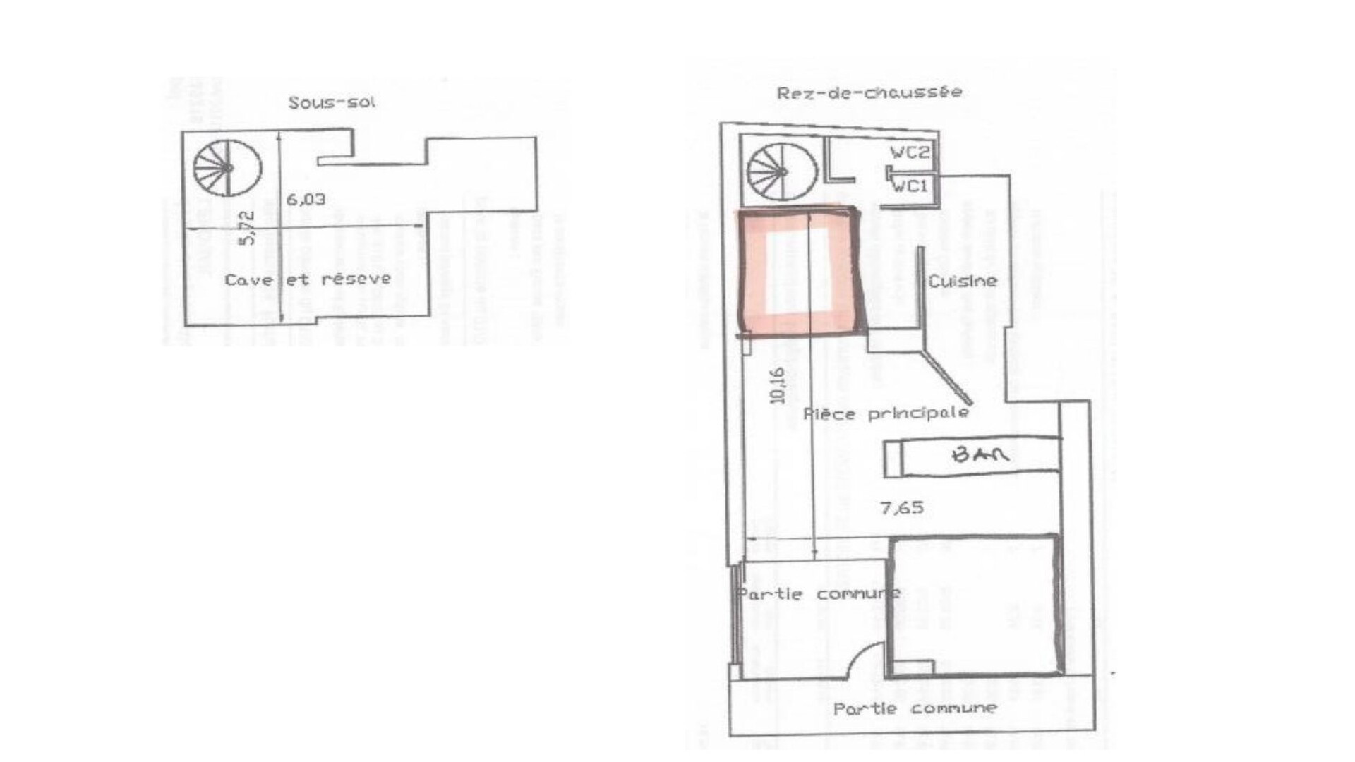
REALPOINT IMMOBILIER vous propose en co-exclusivité des murs commerciaux idéalement situés sur le prestigieux Boulevard de la Croisette, à Cannes.Locaux vendus libres de toute occupationSurface totale : 122,90 m²Rez-de-chaussée : 87,15 m²Sous-sol : 35,75 m²Caractéristiques du bien :Deux accès sur rueLocaux en excellent étatÉclairage LEDClimatisation réversibleChauffage collectifCoin cuisineEmplacement de premier ordre, bénéficiant :D'une excellente visibilitéD'un fort passage piéton et automobileD'un environnement en pleine valorisation, dans le cadre du vaste programme de réaménagement et d'embellissement de la CroisetteContactez-nous dès aujourd'hui pour plus d'informations.Nous mettons un point d'honneur à vous répondre rapidement !Honoraires inclus de 6.67% à la charge de l'acquéreur. Prix hors honoraires 1 500 000 €. Dans une copropriété de 5 lots. Aucune procédure n'est en cours. Non soumis au DPE. Les informations sur les risques auxquels ce bien est exposé sont disponibles sur le site Géorisques : georisques.gouv.fr.

Géolocalisation

Biens similaires

Vente local à Cannes

06400 Cannes

Vente local à Cannes

06400 Cannes

Vente local à Cannes

06400 Cannes

Vente local à Cannes

06400 Cannes

Vente local à Cannes

06400 Cannes

Vente local à Cannes

06400 Cannes

Contacter gratuitement

REALPOINT Immobilier

1622 BOULEVARD GRAND DU SUPER CANNES
06220, Vallauris
Pour connaître et exercer vos droits, notamment de retrait de votre consentement à l'utilisation des données collectées par ce formulaire, veuillez consulter nos CGU