Vente boutique à Èze

Bord de Mer 06360 Eze
Prix : 590 000 €
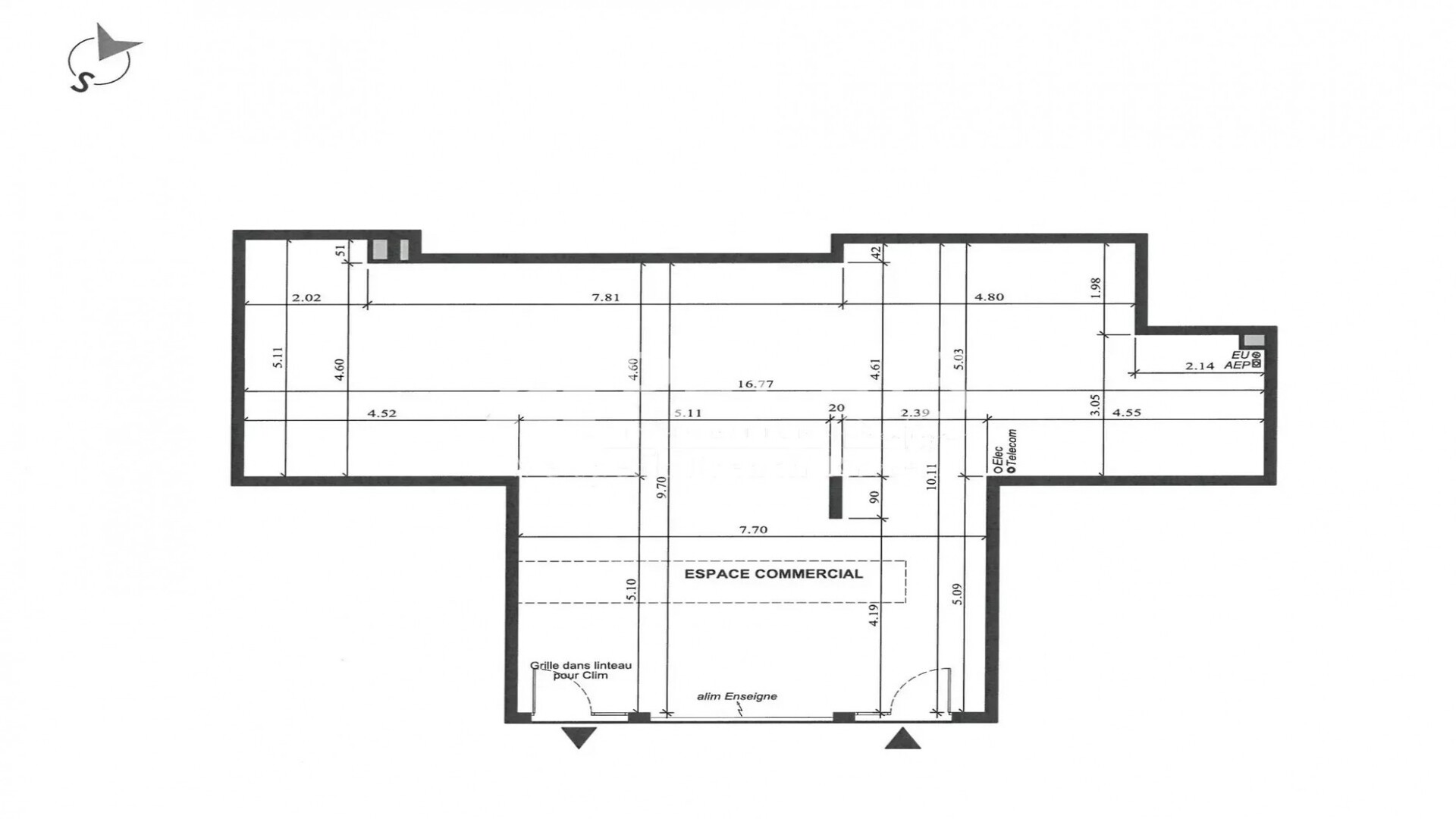
Surface : 100m2

Vente Boutique

COMMERCE : En rez-de-chaussée, (pouvant être divisée) au sein d’une résidence neuve, construite en lieu et place de l’ancien Hôtel-Relais d’Èze.Èze Bord de Mer – Emplacement exceptionnel : À 3 minutes à pied de la plage et à moins de 10 minutes de Monaco.Référence de l'annonce : LOT B02 au RDC / Dossier de présentation disponible sur demande.Prix 590 000 euros hors parking.Parking en sous-sol à partir de 38 000 euros, en supplément.Dernières opportunités ! Il ne reste que 3 appartements à vendre dans la résidence.* Programme Neuf - Frais de notaire réduits.* Honoraires à la charge du vendeur.* Toutes les mesures sont approximatives, les informations sont fournies à titre informatif uniquement.Le Rapport ERRIAL sur les risques auxquels ce bien est exposé est disponible en cliquant sur le lien : https://errial.georisques.gouv.fr

Géolocalisation

Biens similaires

Vente boutique à Èze

06360 Eze

Contacter gratuitement

Groupe Palais Immobilier

47 Boulevard Marinoni
06310, Beaulieu-sur-Mer
Pour connaître et exercer vos droits, notamment de retrait de votre consentement à l'utilisation des données collectées par ce formulaire, veuillez consulter nos CGU