Vente local à Cannes

06400 Cannes
Prix : 980 000 €
Surface : 200m2

Vente Local

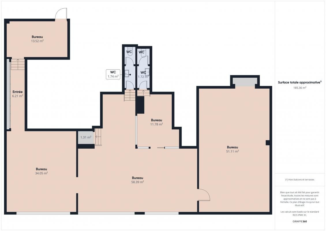
CANNES 06400 -HABILLEMENT PROFESSIONNEL EPI - FONDS DE COMMERCE ÀVENDRE - FORTE RENTABILITÉ.Efficity l'agence qui estime votre bien en ligne vous propose une entreprise historique avecshowroom, ateliers équipés haut de gamme et clientèle professionnelle fidèle. Reprise clé enmain sur un emplacement stratégique à Cannes.À Cannes, sur un emplacement n°1 recherché, opportunité exceptionnelle de reprise d'unfonds de commerce spécialisé dans l'habillement professionnel et les équipements deprotection individuelle (EPI).Implantée depuis 24 ans, l'entreprise bénéficie d'une excellente notoriété régionale et d'uneclientèle fidèle, composée de professionnels, collectivités et particuliers. Forte d'une activitérégulière sur appels d'offres publics et privés, elle affiche un chiffre d'affaires solide etstable.Le local offre une surface totale d'environ 200 m², comprenant :- Un showroom attractif- Ateliers équipés de matériel de production haut de gamme- Deux bureaux- Un espace de stockageLe tout sous un bail commercial neuf 3/6/9 avec un loyer annuel de 48 000 € HT HC.Le magasin est parfaitement aménagé, prêt pour une exploitation immédiate sans travauxsupplémentaires. L'organisation en place permet une grande fluidité de fonctionnement etun développement rapide.Chiffre d'affaires annuel moyen : 1 100 000 €Effectif : 3 salariés expérimentésPrix de cession du fond de commerce : 980 000€Possibilité de cession des titres : prix sur demandePoints forts :- Emplacement stratégique à Cannes- Clientèle professionnelle, diversifiée et fidèle- Atelier de marquage et de broderie performant- Rentabilité prouvée- Potentiel de développement important- Accompagnement possible pour une passation en douceurDossier complet, visite virtuelle et visites uniquement sur demande. Les informations sur les risques auxquels ce bien est exposé sont disponibles sur le site Georisque : georisques. gouv. fr Amandine Richard - EI - est Agent Commercial mandataire en immobilier, immatriculé au Registre Spécial des Agents Commerciaux du Tribunal de Commerce de Grasse sous le n°534141197.Siège social du mandant : effiCity, 48 avenue de Villiers - 75017 PARIS - Société par Actions Simplifiée, société au capital de 132 373,05 euros, immatriculée au RCS Paris 497 617 746 et titulaire de la Carte professionnelle CPI 7501 2015 000 002 025 - CCI Paris IDF - Caisse de Garantie : GALIAN Assurances 89 rue de la Boétie 75008 Paris

Géolocalisation

Biens similaires

Vente local à Cannes

06400 Cannes

Vente local à Cannes

06400 Cannes

Vente local à Cannes

06400 Cannes

Vente local à Cannes

06400 Cannes

Vente local à Cannes

06400 Cannes

Vente local à Cannes

06400 Cannes

Contacter gratuitement

RESEAU EFFICITY

48 Avenue de Villiers
75017,
Pour connaître et exercer vos droits, notamment de retrait de votre consentement à l'utilisation des données collectées par ce formulaire, veuillez consulter nos CGU